PORTES OUVERTES les 14 & 15 novembre 2025 !

Infos et adresses

Imaginez

Illustration d’une maison traditionnelle évolutive avec plan d’extension possible par Stéphane Berger en Alsace

« Concevoir et réaliser ce qu’il y a de mieux pour nos clients, tout au long de leur parcours de vie : telle est la philosophie Maisons Stéphane Berger. C’est dans cette optique que nous nous engageons à rendre possible, simple et accessible l’évolution de votre maison. Une maison qui s’adapte à vos envies, besoins et modes de vie, aujourd’hui et demain. »

Christophe CASADEI
Directeur Général de Maisons Stéphane Berger

Découvrez nos idées d’évolutions

  • Maison individuelle évolutive avec extension et terrasse bois, Stéphane Berger en Alsace
    Maison individuelle avec extension bois et grande terrasse, Stéphane Berger Alsace
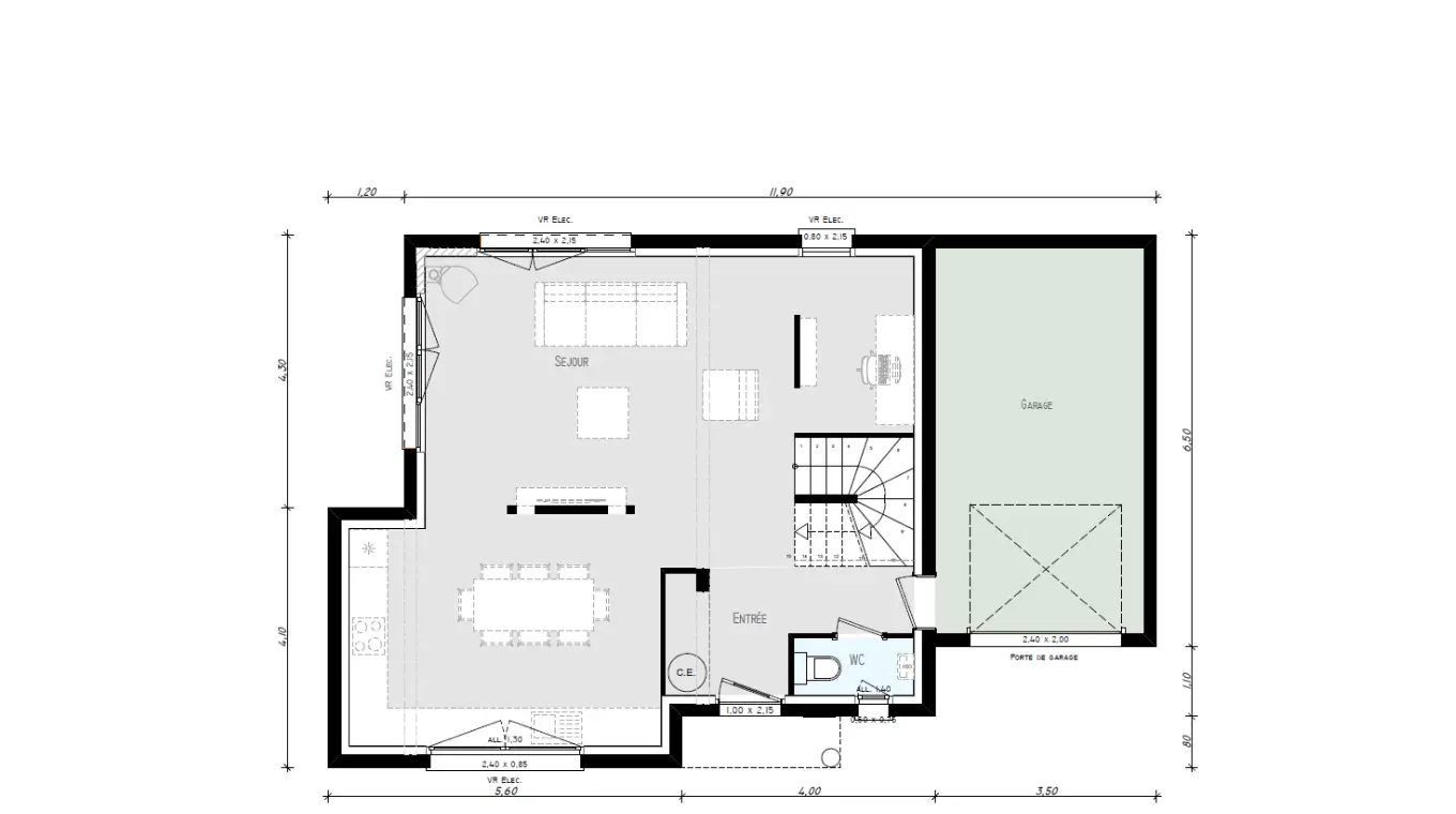
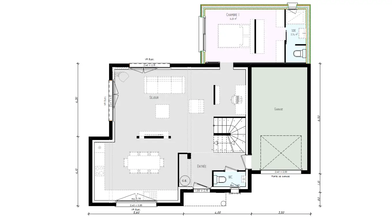
  • Plan 2D du rez-de-chaussée d’une maison évolutive sans extension, réalisé par Stéphane Berger
    Plan 2D du rez-de-chaussée d’une maison évolutive avec extension pour chambre supplémentaire, Stéphane Berger Alsace
  • Maison individuelle évolutive avec piscine et espace vert, construite par Stéphane Berger en Alsace
    Maison individuelle évolutive avec extension bois, piscine et espace jeux, réalisée par Stéphane Berger en Alsace
  • Intérieur moderne et évolutif d’une maison individuelle Stéphane Berger en Alsace
    Espace intérieur lumineux et évolutif d’une maison individuelle Stéphane Berger en Alsace
  • Maison contemporaine évolutive avec piscine et terrasse, construite par Stéphane Berger en Alsace
    Maison évolutive avec extension bois moderne, piscine et terrasse – Stéphane Berger Alsace
  • Maison contemporaine évolutive avec terrasse aménagée et piscine, conçue par Stéphane Berger en Alsace
    Maison contemporaine après extension avec terrasse et piscine, Stéphane Berger Alsace
  • Maison individuelle sur sous-sol avant extension, conçue par Stéphane Berger en Alsace
    Maison individuelle sur sous-sol avec extension bois moderne par Stéphane Berger en Alsace
  • Maison individuelle contemporaine avec piscine et terrasse avant extension, Stéphane Berger en Alsace
    Maison individuelle évolutive avec extension moderne, terrasse et piscine, Stéphane Berger Alsace

Une philosophie de conception signée Maisons Stéphane Berger

La maison évolutive n’est pas un nouveau type de construction, mais plutôt une manière de concevoir l’habitat. Ce qui est novateur dans le processus ? Son adaptabilité ! Votre maison évolue avec vous pour que vous vous y sentiez bien, aujourd’hui comme demain. Que ce soit pour accueillir une famille grandissante, aménager un espace de travail à domicile, préparer une nouvelle vie de retraité ou simplement profiter d’un espace de vie plus grand, cette approche vous permet d’adapter facilement votre maison, sans changer d’adresse. Car la transformation, même partielle, de votre lieu de vie vous apportera de nouveaux bénéfices, une nouvelle dynamique et de nouvelles perspectives.

PLANS "AVANT-APRÈS" PENSÉS DÈS LA CONCEPTION : en définissant intelligemment les configurations et aménagements en amont du projet, les espaces évoluent naturellement le moment venu.

MISE EN ŒUVRE SIMPLE ET ÉCONOMIQUE : tout est déjà prêt pour accueillir les futurs travaux, facilement et en conservant l'âme de votre maison.

POSSIBILITÉS MULTIPLES : BUREAU DÉDIÉ, STUDIO INDÉPENDANT... Une maison qui répond à vos besoins d'aujourd'hui et saura s'adapter à votre vie de demain.

MAISON ADAPTÉE TOUT AU LONG DE LA VIE : une maison qui évolue avec votre famille, vous évite de déménager lorsque vos besoins changent et vous permet de vous y sentir bien année après année.

Que se cache t’il derrière « maison évolutive » ?

Plus proche d’une philosophie que d’un simple concept, la maison évolutive part du principe que les besoins, au courant d’une vie, évoluent. Elle repose donc sur la vision d’un logement qui anticipe et s’adapte aux changements de votre vie. En intégrant la flexibilité dès sa conception, ce type d’habitat répond à votre mode de vie actuel et anticipe vos besoins futurs en permettant des modifications aisées de la structure, offrant ainsi une véritable personnalisation au fil du temps.
De l’implantation sur le terrain à la disposition des pièces en passant par le choix des matériaux et équipements, tout est envisagé dans la perspective de pouvoir ajouter ou modifier des éléments ultérieurement.

En pratique, la maison évolutive repose sur quatre grands principes :

  • Adaptabilité : l’habitat évolutif est conçu pour être facilement modulable en fonction des envies et des besoins changeants de ses habitants.
  • Collaboration : dès la phase de conception, une écoute active ainsi qu’un échange transparent entre les futurs propriétaires des lieux et le constructeur de maisons est indispensable.
  • Anticipation : la réussite d’une maison évolutive pensée pour une vie réside dans la capacité à se projeter dans le futur tout en anticipant l’évolution des besoins pour prévoir des aménagements possibles, flexibles et adaptés.
  • Durabilité : plus encore qu’une maison traditionnelle, la maison évolutive est pensée pour durer dans le temps et s’inscrire dans une démarche responsable. Bois, verre, acier, brique.. le choix de matériaux qualitatifs et éprouvés assurera sa pérennité.

Dans une société en constante évolution, où les besoins et les modes de vie des individus changent, la maison évolutive se présente comme une réponse novatrice aux enjeux de l’habitat actuel et futur. Contrairement aux modèles de logements traditionnels, les maisons évolutives Maisons Stéphane Berger se distinguent par leur personnalisation continue au fil du temps, pour s’adapter naturellement aux évolutions de votre famille et de vos aspirations. A travers cette philosophie, nous rendons « l’imprévisible » possible !

Ils ont construit une maison évolutive signée Stéphane Berger : découvrez leur histoire !

01- Découvrez le parcours d’Élisa et Valentin, qui ont pu concrétiser leur projet de vie grâce à la maison évolutive.

02- Retrouvez Élisa et Valentin sur le chantier de leur maison évolutive, quelques semaines avant la remise des clés.

Pourquoi opter pour une maison évolutive : les avantages

Dans un marché en tension, l’approche traditionnelle de la construction immobilière se trouve confrontée à de nouveaux défis : modes de vie changeants, vieillissement de la population, durcissement des conditions d’emprunt, raréfaction du foncier…Avec la maison évolutive signée Stéphane Berger, nous nous engageons à offrir à nos clients ce qu’il y a de mieux, tout au long de leur parcours de vie. Une solution innovante, adaptée aux impératifs de l’habitat contemporain.

1- Un financement facilité de votre projet immobilier

Au-delà de sa flexibilité architecturale, la maison évolutive est aussi une alternative financière qui peut changer la donne pour les aspirants propriétaires ! En effet, en prévoyant l’évolution progressive de votre habitat, vous échelonnez son financement dans le temps et réduisez ainsi l’investissement initial lié à la construction de votre maison neuve. Cette solution ingénieuse permet de faciliter l’acceptation de votre demande d’emprunt auprès des établissements bancaires et de profiter tout de suite d’un lieu de vie confortable… dont vous êtes propriétaire ! Un parfait équilibre qui vous assure de concrétiser votre rêve immobilier sans faire de concession sur la conception finale de votre maison.

2- Votre maison de demain déjà esquissée : pour une mise en œuvre facile et à moindre coût

Bien souvent les besoins et impératifs d’aujourd’hui ne sont plus ceux de demain. La transformation, même partielle, du lieu de vie est une solution pertinente et budgétairement raisonnable qui génère de nouveaux bienfaits, une nouvelle respiration, une nouvelle vie. C’est là toute la promesse faite par la maison évolutive.
Mais se projeter dans sa vie future, anticiper les besoins à venir de sa famille ou visualiser son quotidien dans quelques années n’est pas toujours chose facile. C’est pourquoi l’équipe Maisons Stéphane Berger, habituée à concevoir ce type d’habitat, est à vos côtés pour vous guider et vous aider à prendre les devants sur les évolutions possibles (familiales, sociales, technologiques, environnementales et réglementaires). Ensemble, nous esquissons les plans avant/après de votre maison évolutive dans laquelle configurations et aménagements sont intelligemment pensés pour évoluer naturellement le moment venu.
Oublié le stress de l’extension prévue après coup qui empiète sur le potager durement entretenu. Fini les câbles électriques à tirer qui gâchent la décoration murale soigneusement choisie. Avec la maison évolutive, plus de mauvaises surprises ! Lorsque vous en ressentirez le besoin, la mise en œuvre sera simple et économique puisque tout a été anticipé en amont pour accueillir les futurs travaux, facilement, à moindre coût et en conservant l’âme de votre maison.

3- Une maison adaptée, tout au long de votre vie

Concevoir et construire votre maison revient à créer les conditions favorables à votre épanouissement. Nous savons que ce nouveau projet de vie doit agir pour votre bien et répondre à une multitude de désirs : être libre de vos mouvements, profiter d’espace à soi et d’espaces communs, travailler et se détendre, recevoir des amis, élever des enfants, jouer avec eux et les voir grandir…
Vous attendez des jumeaux et avez besoin d’une chambre en plus ? Vous lancez votre activité professionnelle et souhaitez disposer d’un bureau indépendant ? Vous rêvez d’une suite parentale avec vue sur le jardin ?
Voir plus grand, plus large, plus utile, plus loin… c’est désormais possible !
Hors des standards, la maison évolutive s’adapte tout au long de votre vie en fonction de vos changements familiaux, de vos nouvelles aspirations ou de votre situation professionnelle. Plus besoin de déménager lorsque vos besoins changent. Votre logement évolue pour vous permettre de vous y sentir toujours aussi bien, année après année.
L’intégration dès la conception de cette réflexion permet également de ne pas dénaturer l’esprit de votre espace de vie mais simplement de le voir évoluer.

4- Une revente facilitée et à un meilleur prix

Financement facilité, mise en œuvre à moindre coût, adaptabilité… tous ces avantages sont également valables pour un futur acheteur et valorisent donc votre bien, offrant ainsi la possibilité de le revendre facilement et à un meilleur prix. Une maison évolutive attire davantage d’acheteurs potentiels grâce à sa flexibilité et à sa capacité à s’adapter à divers modes de vie et besoins. Cette adaptabilité se traduit par une maison prête à accueillir de nouveaux projets de vie sans nécessiter de lourdes transformations. Par conséquent, en investissant dans une maison évolutive, vous vous assurez non seulement un habitat qui évolue avec vous, mais aussi une augmentation significative de la valeur de votre propriété sur le marché immobilier.

Nos conseils pour bien faire construire une maison évolutive

Construire une maison évolutive nécessite une réflexion approfondie sur la conception, en tenant compte de vos envies, de vos besoins et de votre mode de vie. Chez Maisons Stéphane Berger, nous comprenons l’importance d’un accompagnement personnalisé. C’est pourquoi un Responsable de Projet dédié travaille à vos côtés pour faire de votre maison le reflet de vos aspirations (actuelles et futures !).

Pour autant, la réflexion ne se limite pas à la conception de la maison. Elle doit également prendre en compte les spécificités du terrain sur lequel elle s’implante. Que vous envisagiez un agrandissement de plain-pied, une surélévation à l’étage ou un simple réagencement des espaces existants, c’est toute une équipe qui vous guide dans vos réflexions afin de faire des choix de conception qui tirent le meilleur parti du terrain et garantir votre bien-être sur le long terme.

Pour réussir la construction d’une maison évolutive, la qualité des matériaux et de mise en œuvre est également essentielle. Faire appel à des professionnels reconnus dans le domaine de la construction de maisons individuelles vous assure un projet immobilier sûr et pérenne. Disposant d’une connaissance pointue des processus et profitant d’une collaboration étroite avec des artisans fiables, les conducteurs de travaux Maisons Stéphane Berger vous garantissent une maison évolutive construite dans les règles de l’art, prête à accueillir les évolutions futures sans compromis sur la qualité, le tout dans un budget optimisé.

Pour profiter d’une maison évolutive, personnalisée et adaptée à votre mode de vie d’aujourd’hui comme de demain, faites-vous accompagner par un constructeur expert. Ensemble, donnons vie à une maison qui grandira avec vous, évoluant harmonieusement au rythme de votre famille et de vos aspirations. 

Traçons les lignes de votre futur

maison evolutive extension rez de chaussee et etage Je prends contact

Découvrir en photos et vidéos

interieur maison decoration moderne cuisine ouverte sur sejour Je m'inspire
Concevoir ma maison évolutive